Trilocale in vendita

Vicenza, Statale pasubio - Moracchino
€ 220.000
3 locali 3 locali
111 Mq 111 Mq
2 bagni 2 bagni

Trilocale in vendita

Vicenza, Statale pasubio - Moracchino

Descrizione annuncio

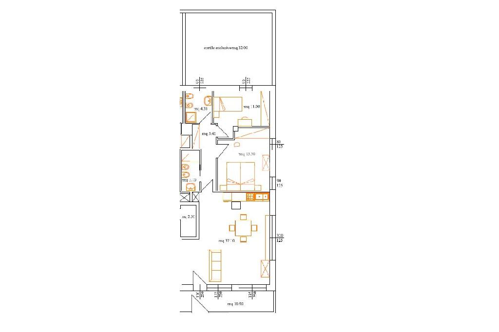
NUOVO APPARTAMENTO TRILOCALE DOPPI SERVIZI CON GARAGE DOPPIO

VIENE RICHIESTO PRIMA DELLA VISITA SUL POSTO, UN APPUNTAMENTO PREVENTIVO PRESSO IL NOSTRO UFFICIO!

Siamo lieti di proporre in vendita alla nostra clientela una tipologia di appartamento molto ricercata, situato al piano terra con ingresso indipendente ed area esterna privata.

L'immobile si trova in una posizione ideale, vicina alle principali vie di comunicazione. La zona è ben fornita di servizi, come scuole, negozi, supermercati, e trasporti pubblici, rendendo questa soluzione perfetta per chi cerca comodità e accessibilità a portata di mano.

DESCRIZIONE E PARTICOLARITA':

L'appartamento si sviluppa in un unico piano, ampio soggiorno in open space di circa 40 mq. La zona notte composta da una camera matrimoniale, una singola e due bagni entrambi con doccia per garantire il massimo del confort. Le finiture interne possono essere personalizzate sulla base del 'Capitolato' esistente. Esternamente la proprietà include ingresso indipendente con scoperto privato, un terrazzo abitabile di circa 30 mq, perfetta per cene all'aperto o semplicemente per godersi il panorama.

COSA SAPERE DELL'IMMOBILE:

NUOVA REALIZZAZIONE CON FINITURE DAL CARATTERE MODERNO E DI QUALITA'.

PREVISTA CLASSE ENERGETICA B

GARAGE DOPPIO

COME CONTATTARCI:

Chiamateci al numero 0444964664 o contattateci via Whatsapp al numero 3293678116. Seguiteci su Facebook, cliccando 'mi piace' alla pagina Agenzia Tecnocasa Vicenza Piscine.

Mostra tutto

Nelle vicinanze

Trasporto pubblico Trasporto pubblico
Trasporto pubblico
800 m
Caserma Del Din
Caserma Del Din
1,3 Km
Ricariche auto elettriche Ricariche auto elettriche
COSTABISSARA S. Stefano | ENELX
910 m
Municipio di COSTABISSARA | ENELX
2,2 Km
Costabissara Strada del Pasubio | EnelX
3,0 Km
Scuole Scuole
Scuola Primaria Jacopo Cabianca
460 m
Scuole
550 m
Scuola Primaria "Fedele Lampertico"
2,1 Km
I.P.S.I.A. "F. Lampertico"
2,3 Km
Scuola Materna di Rettorgole
2,4 Km
Farmacia Farmacia
Farmacia Tonello Claudia
540 m
Farmacia del Sole
2,1 Km
Farmacia Dallafina
2,2 Km
Farmacia dott. Sanson
2,2 Km
Farmacia Patuzzi
2,5 Km
Ospedali Ospedali
Ospedali
2,0 Km
Supermercati Supermercati
Prix
1,8 Km
Eurospin
2,2 Km
Pam Superstore
2,2 Km
Aldi
2,4 Km
Supermercati
2,5 Km
Negozi Negozi
Negozi
790 m
Dinosauro
1,8 Km
De Toni Roberta
2,1 Km
La Forneria Zenere
2,4 Km
Pan ti voglio
2,4 Km
Bar Bar
Bar ristorante
70 m
Bar Maddalene
570 m
Scalo 89 Sky Lounge
1,9 Km
Caffè Mirò
2,0 Km
Good Morning
2,1 Km
Ristoranti Ristoranti
Birreria N 1
530 m
Profumo di Pizza
670 m
Ristoranti
1,2 Km
Pizzeria "La fenice"
1,3 Km
Ristorante Storione
1,6 Km
Mostra tutto

Caratteristiche

Rif.:
61015428
Piano:
Terra di 4 con ascensore
Totale piani:
4
Box:
2
Posti auto:
2
Balconi:
1
Mostra tutto
Prezzo Prezzo
€ 220.000
Rata mutuo Rata mutuo
€ 1.038 / mese
Spese annue Spese annue
€ 600
Proponi il tuo prezzoProponi il tuo prezzo

Classe Energetica

Questo immobile è esente da classe energetica
Anno di costruzione:
2008
Riscaldamento:
Autonomo
Tipo impianto:
Ad aria
Tipo alimentazione:
Aria

Ti interessa visionare l'immobile?

Fissa un appuntamento  Fissa un appuntamento

Richiedi informazioni

Clicca su Leggi per aprire l'informativa
* Questi campi sono obbligatori

Calcola il tuo mutuo

Semplice e senza impegno
Anticipo

( % )
Mutuo

( % )

pochi semplici passi

inserisci i tuoi dati
Questionario completato
Grazie per aver richiesto un appuntamento senza impegno con un nostro Consulente del Credito e Assicurativo.

Hai inserito correttamente tutti i dati necessari e a breve riceverai una e-mail con un link da convalidare per inviare i tuoi dati.
Affiliato
Studio Piscine Srl
Viale Trento, 190/B 36100 Vicenza (VI)

Il nostro staff


  • Nicolò Zanon
    Affiliato
Viale Trento, 190/B 36100 Vicenza (VI)
Zona: Piscine
Mostra su mappa
Orari: da lunedì a venerdì 9:00 - 13:00 pomeriggio 14:30 - 19:30 sabato dalle 9:00 alle 13:00 preferibilmente su appuntamento
Affiliato
Studio Piscine Srl
Viale Trento, 190/B 36100 Vicenza (VI)

2025 Tecnocasa Franchising S.p.A. - P. IVA 08365160152 - Via Monte Bianco 60/A 20089 Rozzano (MI). Ogni agenzia ha un proprio titolare ed è autonoma. Privacy policy | Policy utilizzo | Cookie policy